Продажа встроенного помещения на Воскресенской набережной

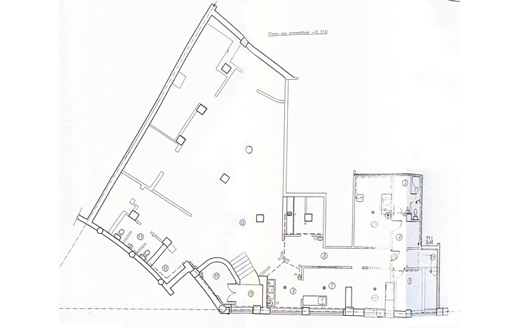
Объект Встроенное помещение площадью 219 кв.м.
Галерея
Месторасположение г.Санкт-Петербург, Центральный район, Воскресенская набережная.
Описание Встроенное помещение расположено на цокольном этаже элитного жилого дома, имеет два входа.

В помещении ранее располагался ресторан, выполнен дизайнерский ремонт, размещено профессиональное кухонное оборудование и мебель для ресторана.
Статус объекта Помещение в собственности физического лица.
Коммуникации Заключены договоры со всеми ресурсоснабжающими организациями. При смене собственника понадобится переоформление.
Возможное использование Ресторан, дарк-стор, заведение общественного питания и пр.
Цена Для получения информации обращайтесь в офис: +7 (911) 000-99-29, +7 (812) 600-99-29
ГЛАВНАЯ    |    ОБЪЕКТЫ В ПРОДАЖЕ    |    КАРТА    |    АНАЛИТИКА    |    УСЛУГИ    |    О НАС    |    КОНТАКТЫ © 2006-2025 Авторские права на все материалы сайта принадлежат компании "ПЕТЕРЛЭНД"